Company profile

JAMINNAR is a leading bending tool manufacturer in Ma'anshan, China. Our design team focuses on innovative solutions and uses advanced equipment for production with strict quality control. Our molds undergo rigorous testing to ensure stability and durability.

All products

Motorized adjustable Die System / bending tools

Adjustable Die System obtaining different v openings on the same press brake. Thanks to this modularity it's possible to obtain different radius and bending angles. Adjustable Die System series dies help to bend sheets of various thicknesses comfortably in a single configuration. Different widths ("V" openings) can be adjusted according to the required specifications simply and quickly thanks to adjustment bars. available with different openings according to the thickness of the sheet to be bent. Movement of the moving parts in 3 ways: Shim Style system, manual system and motorized system. Except Shim Style system,the equipment is composed by 3 key parts: the structure of the die, the support structure and the adjustment bars. The support can be supplied with different tangs. Welcome to explore our quality press brake tooling and contact us for professional service!

Custom rotary dies For Press Brake

Rotary DiesRotary dies are a great special tooling solution with numerous bending operation benefits. Because tonnage disperses with the movement of the rotating cam, the application requires less tonnage and makes bending sheet significantly easier for operators to handle. In some cases, using a rotary tool can cut labour costs in half, when more than one operator has traditionally been required, and improves safety. For cosmetic applications, rotary bending greatly decreases tonnage and part marking so sheets may require less protection and have improved finished appearance.Rotary die features:Improved safety for larger parts due to controlled material whipMaterial marking is reduced since tonnage is reduced on the shoulder of the die and abrasion is lessenedReduced tonnage on an application by 50% or morePotential reduction in labor needs

Shim Style Adjustable Dies System/ bending tools

Shim Style Adjustable Dies Adjustable lower dies could be considered to be one of the most versatile additions to a press brake. With this type of tool, openings can be arranged from 6.35mm to 381mm. Spacers are provided to produce the required opening. Slotted spacers allow for easy removal to change the die opening. When not in use, spacers are positioned at sides of the die block. These dies can be furnished in solid lengths or sectioned for easier handling. Shim Style Adjustable Dies System is a press brake tooling solution that uses layers of shims or spacers to adjust the opening width of a die, allowing a single die to accommodate various sheet metal thicknesses and bending angles . This system provides flexibility, cost savings, and easier setup by avoiding the need for multiple fixed dies, though it requires manual adjust shimming.

Manual adjustable die System / bending tools

Adjustable Die System obtaining different v openings on the same press brake. Thanks to this modularity it's possible to obtain different radius and bending angles. Adjustable Die System series dies help to bend sheets of various thicknesses comfortably in a single configuration. Different widths ("V" openings) can be adjusted according to the required specifications simply and quickly thanks to adjustment bars. available with different openings according to the thickness of the sheet to be bent. Movement of the moving parts in 3 ways: Shim Style system, manual system and motorized system. Except Shim Style system,the equipment is composed by 3 key parts: the structure of the die, the support structure and the adjustment bars. The support can be supplied with different tangs. Welcome to explore our quality press brake tooling and contact us for professional service!

Heavy duty press brake tools / bending tools

Heavy duty press brake tools can bend very thick, high-strength matal plate. Welcome to explore our quality press brake tooling and contact us for professional service!

Thick turret Open louver tools forming punch tools

The tools be designed by the sheet thickness and one set tools just for only one kind of thickness. when you have no idea how to choose, pls improvide the follow informations: Punch press model, punch die station structure, plate thickness, mold specification shape size,mold height series or outer diameter . Thick turret Open louver tools forming punch tools Material:punch-body SKH51 and die DC53 Hardness:HRC58-62 The tools life (round) is about 800000hits and (shape) is about 600000-700000hits. Package:Multi plywood

Hinge Tools /press brake bending tools

The hinge tool is a specialized tool used for producing hinges (hinges), and its core function is to achieve efficient and standardized manufacturing of hinges through precision molding processes.

Mark-Free Bending Tool / bending tools

Heavy duty press brake tools can bend very thick, high-strength matal plate. Welcome to explore our quality press brake tooling and contact us for professional service! ADVANTAGES Production in two or three strokes Reducing of marks through spring loaded hold-down-device Active components are hardened High repeatability through integrated backgauge Functional test and adjustment through test bends - with your sample sheets SUITABLE FOR Material thickness up to 4,0 mm minimum inside Ø: 2,5 mm x material thickness for steel and aluminium 3,0 mm x material thickness for stainless steel Other shapes and layouts are manufactured individually according to your specifications

Offset Bending Tools / bending tools

Heavy duty press brake tools can bend very thick, high-strength matal plate. Welcome to explore our quality press brake tooling and contact us for professional service! ADVANTAGES Production in two or three strokes Reducing of marks through spring loaded hold-down-device Active components are hardened High repeatability through integrated backgauge Functional test and adjustment through test bends - with your sample sheets SUITABLE FOR Material thickness up to 4,0 mm minimum inside Ø: 2,5 mm x material thickness for steel and aluminium 3,0 mm x material thickness for stainless steel Other shapes and layouts are manufactured individually according to your specifications

Large Radius Bending Tools / bending tools

Heavy duty press brake tools can bend very thick, high-strength matal plate. Welcome to explore our quality press brake tooling and contact us for professional service! ADVANTAGES Production in two or three strokes Reducing of marks through spring loaded hold-down-device Active components are hardened High repeatability through integrated backgauge Functional test and adjustment through test bends - with your sample sheets SUITABLE FOR Material thickness up to 4,0 mm minimum inside Ø: 2,5 mm x material thickness for steel and aluminium 3,0 mm x material thickness for stainless steel Other shapes and layouts are manufactured individually according to your specifications

Press brake rolla-v dies without scratch

Press brake rolla-v dies without scratch, it's best to put the film on the workpiece surface when you bend. and we will recoomend the suitable roll-v die size for you according to the plate you bend.

Offset Punch and Die Set / bending tools

Also known as Z bends or Joggles, the Offset punch and die set is able to make two bends at the same time. This is the solution for applications requiring materials to be joined together or when you need to make a second bend that will not interfere with the first bend.

Press Brake Hemming Dies With Spring For Flatten

Press brake hemming dies with spring for flatten, we can change the v opening according to the customer's bending thickness. Bending step: 1.bending angle first; 2.flatting.

Press brake wingbend dies Tension Spring Series Non-indentation Die for Press Brake

Press brake wingbend dies without scratch, it's best to put the film on the workpiece surface when you bend. and we will recoomend the suitable roll-v die size for you according to the plate you bend.

Upper Punch of WILA Type Press Brake Punches with Radius 3 mm

The punch size is 200*20*500mm, 60degree, the material is 42CrMo4, the weight is 16.1kg. for the angle and radius, we can make it according to your bending request. Welcome to explore our quality press brake tooling and contact us for professional service!

200mm height upper tooling Jaminnar - wila 80 Degree Press Brake Punches and Dies

The punch size is 200*30*500mm, 60degree, the material is 42CrMo4, the weight is 16kg. for the angle and radius, we can make it according to your bending request. Welcome to explore our quality press brake tooling and contact us for professional service!

EHT Press Brake Tooling and Dies for Bending Sheet Metal

EHT press brake tooling is a matching tool designed specifically for EHT brand CNC bending machines. It has the characteristics of high precision, wear resistance, and strong adaptability, and is widely used in the field of sheet metal processing. We can customize comprehensive punch and dies, and European EHT tooling. This cnc punch press tooling includes punches, dies, adapters. It supports segmented, solid length, and half-length sizes. we have a wide range of EHT press brake punch and die selections. EHT tooling can deliver a quick, easy, and flexible job with advanced designs.

Full hardened 44-50 Hrc EHT type press brake punch and dies for bending sheet metal

EHT press brake tooling is a matching tool designed specifically for EHT brand CNC bending machines. It has the characteristics of high precision, wear resistance, and strong adaptability, and is widely used in the field of sheet metal processing. We can customize comprehensive punch and dies, and European EHT tooling. This cnc punch press tooling includes punches, dies, adapters. It supports segmented, solid length, and half-length sizes. we have a wide range of EHT press brake punch and die selections. EHT tooling can deliver a quick, easy, and flexible job with advanced designs.

European bending tools of EHT type press brake punch and die for bending sheet metal

EHT press brake tooling is a matching tool designed specifically for EHT brand CNC bending machines. It has the characteristics of high precision, wear resistance, and strong adaptability, and is widely used in the field of sheet metal processing. We can customize comprehensive punch and dies, and European EHT tooling. This cnc punch press tooling includes punches, dies, adapters. It supports segmented, solid length, and half-length sizes. we have a wide range of EHT press brake punch and die selections. EHT tooling can deliver a quick, easy, and flexible job with advanced designs.

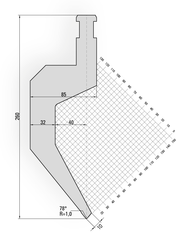
Segment gooseneck punch of EHT upper press brake tooling Chinese jaminnar punches

EHT press brake tooling is a matching tool designed specifically for EHT brand CNC bending machines. It has the characteristics of high precision, wear resistance, and strong adaptability, and is widely used in the field of sheet metal processing. We can customize comprehensive punch and dies, and European EHT tooling. This cnc punch press tooling includes punches, dies, adapters. It supports segmented, solid length, and half-length sizes. we have a wide range of EHT press brake punch and die selections. EHT tooling can deliver a quick, easy, and flexible job with advanced designs.

Jaminnar Standard Lower Dies of EHT 8 ME 288 Lower Press Brake Dies and Moulds

EHT press brake tooling is a matching tool designed specifically for EHT brand CNC bending machines. It has the characteristics of high precision, wear resistance, and strong adaptability, and is widely used in the field of sheet metal processing. We can customize comprehensive punch and dies, and European EHT tooling. This cnc punch press tooling includes punches, dies, adapters. It supports segmented, solid length, and half-length sizes. we have a wide range of EHT press brake punch and die selections. EHT tooling can deliver a quick, easy, and flexible job with advanced designs.

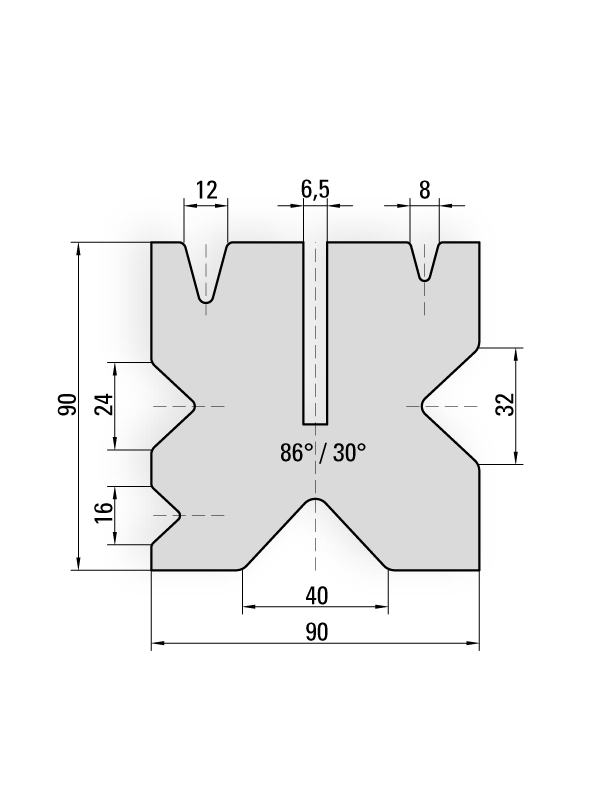
Multi vee block dies of EHT type press brake punch and die

EHT press brake tooling is a matching tool designed specifically for EHT brand CNC bending machines. It has the characteristics of high precision, wear resistance, and strong adaptability, and is widely used in the field of sheet metal processing. We can customize comprehensive punch and dies, and European EHT tooling. This cnc punch press tooling includes punches, dies, adapters. It supports segmented, solid length, and half-length sizes. we have a wide range of EHT press brake punch and die selections. EHT tooling can deliver a quick, easy, and flexible job with advanced designs.

Single Vee die of Wila V4mm lower press brake die - 86°/V4/R0.4 dies, H = 55 mm

The die size is 72*25*515mm, 86degree, the material is 42CrMo4, the weight is 3.6kg. for the angle, V opening and radius, we can make it according to your bending request. Welcome to explore our quality press brake tooling and contact us for professional service!

Showing 1 to 1 of 1 (1 Pages)

click here to leave a message

leave a message
If you are interested in our products and want to know more details,please leave a message here,we will reply you as soon as we can.